Механизм изменения вылета стрелы

Чертежи, электросхемы, общение...
Ответить
orairo
Сообщения: 28
Зарегистрирован: 18 мар 2017, 00:53

Механизм изменения вылета стрелы

Сообщение orairo »

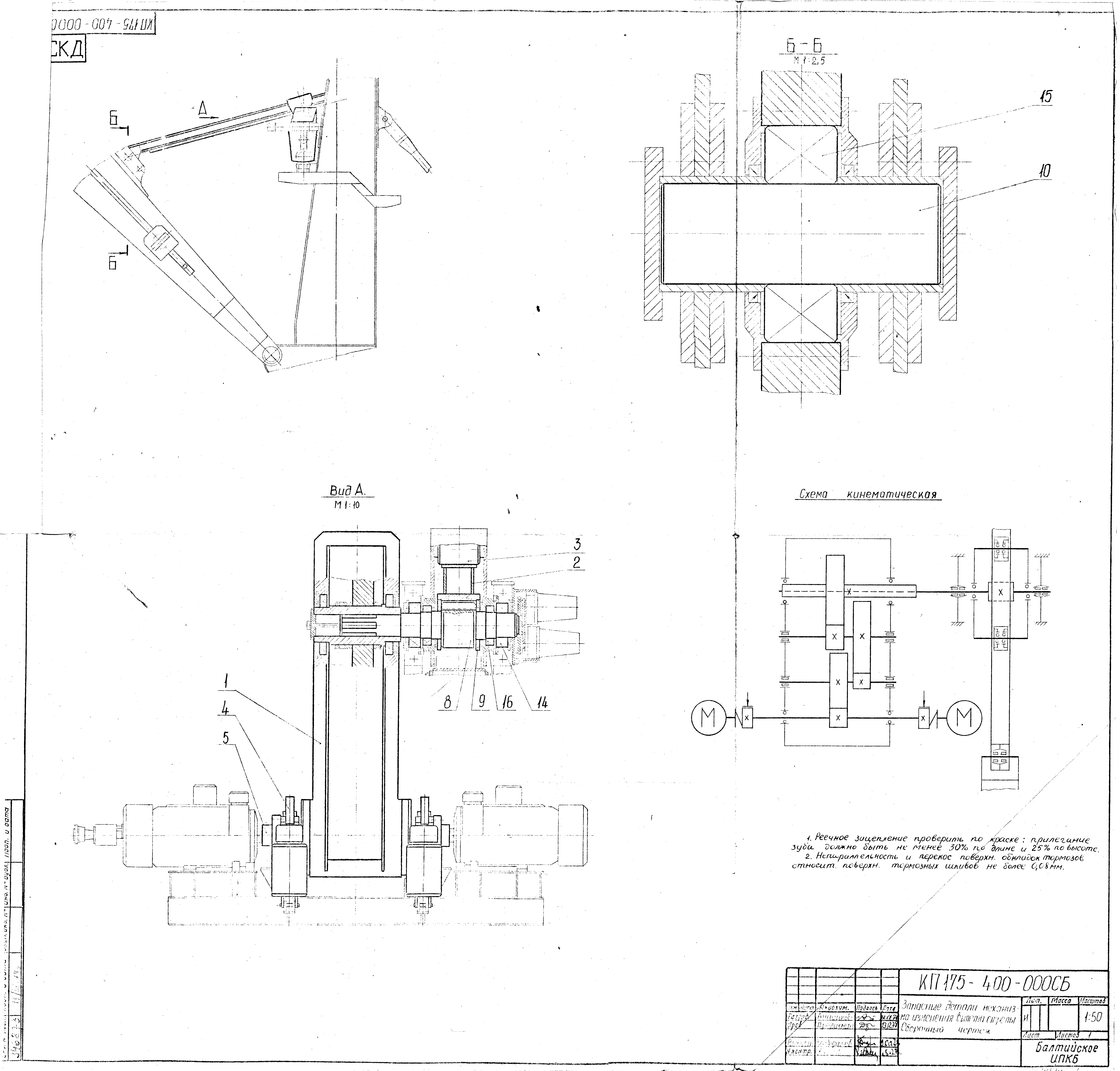
Сборочный чертёж механизма изменения вылета стрелы КП175-400-000СБ
175-400-000СБ.png
orairo
Сообщения: 28
Зарегистрирован: 18 мар 2017, 00:53

Re: Механизм изменения вылета стрелы

Сообщение orairo »

Спецификация КП175-400-000
175-400-000 (1 из 2).png
175-400-000 (2 из 2).png
Ответить